| ma 3 | | | Prof. Kirsten Schemel Entwurf |
Der Entwurf basiert auf der Idee des Spriesens eines jungen Sprosses.
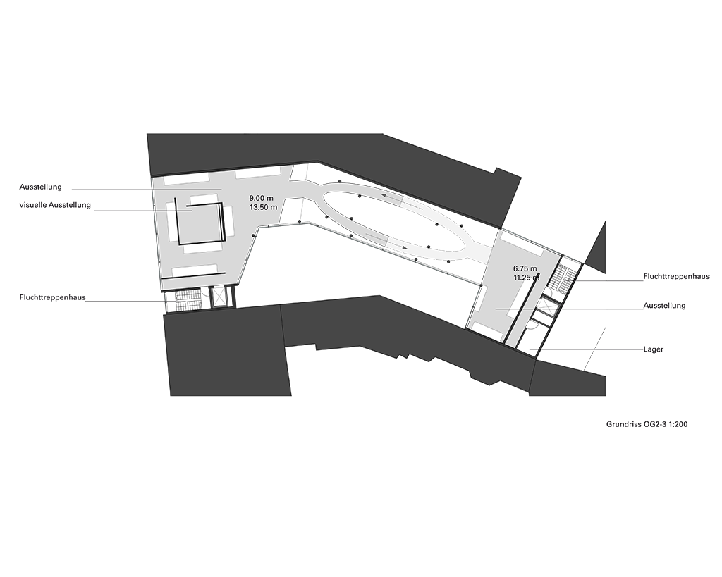
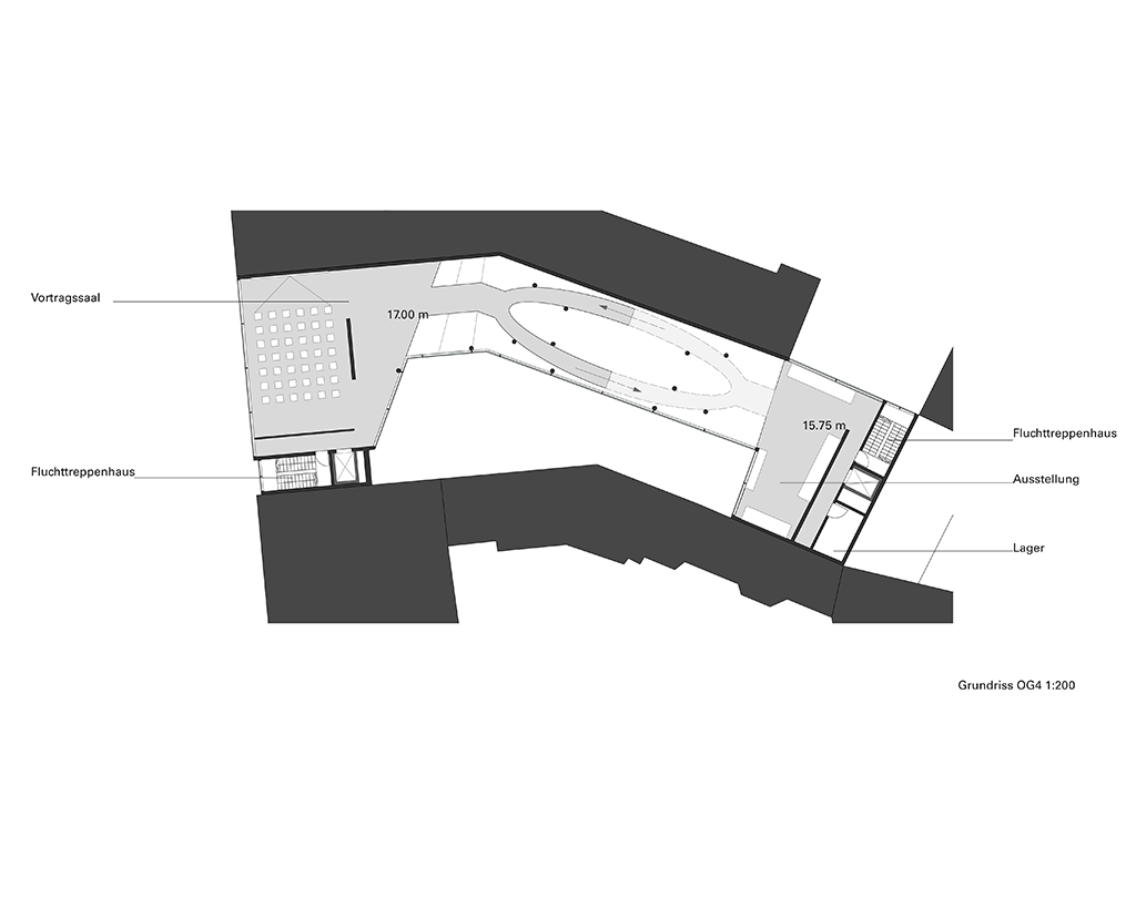
Ähnlich wie beim Spross entwickeln sich auch hier die verschiedenen Ebenen um einen "Stamm" nach links und rechts. Der Stamm ist in diesem Entwurfs das Erschließungselement - eine Rampemanlage, die die Nutzer zu den verschiedenen Ebenen begibt. Auf den Ebenen selbst findet der Besucher multimediale Informationen zur Entwicklung Medien Technik speziell der von Apple.
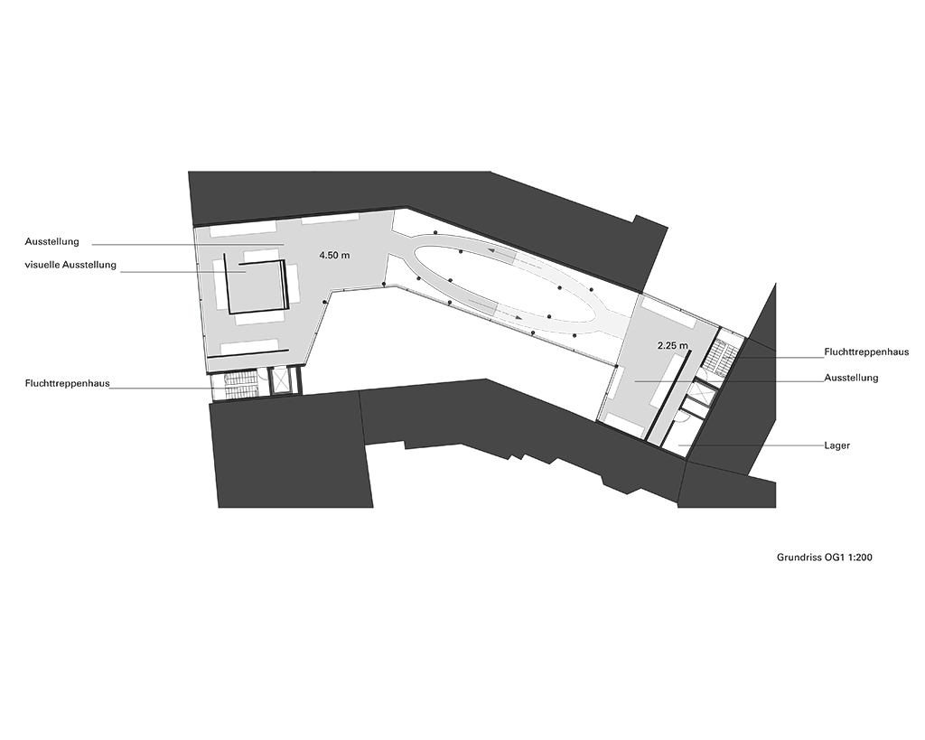
Im Kern jedes Ausstellungsgeschoss gibt es einen Kern, wo die Themen speziallisiert wiedergegeben werden.
Die Nutzer bekommen beim Eintritt in das AEC jeder ein Ipad und können mit Hilfe dessen sowie QR Codes an den Ausstellungsobjekten weitere Informationen sammeln und lernen.
Das Thema ma | en | oku tritt vorallem im Bereich der Erschließung als ma auf.
hashi/suki - Die Brücke zwischen zwei Räumenutsoroi - Die Empfindung der Bewegung
michiyuki - Koordination der Bewegung von einen Ort zu einem anderen
Im Bereich der Ausstellung tritt das ma als sabi - gefüllt mit Zeichen der Vergangenheit auf.






















