| ma 1 | | | Prof. Victor Mani Kurzentwurf |
| team | | | Florian T. Walter BA |
"Ich starte erstmal mim Leoni."
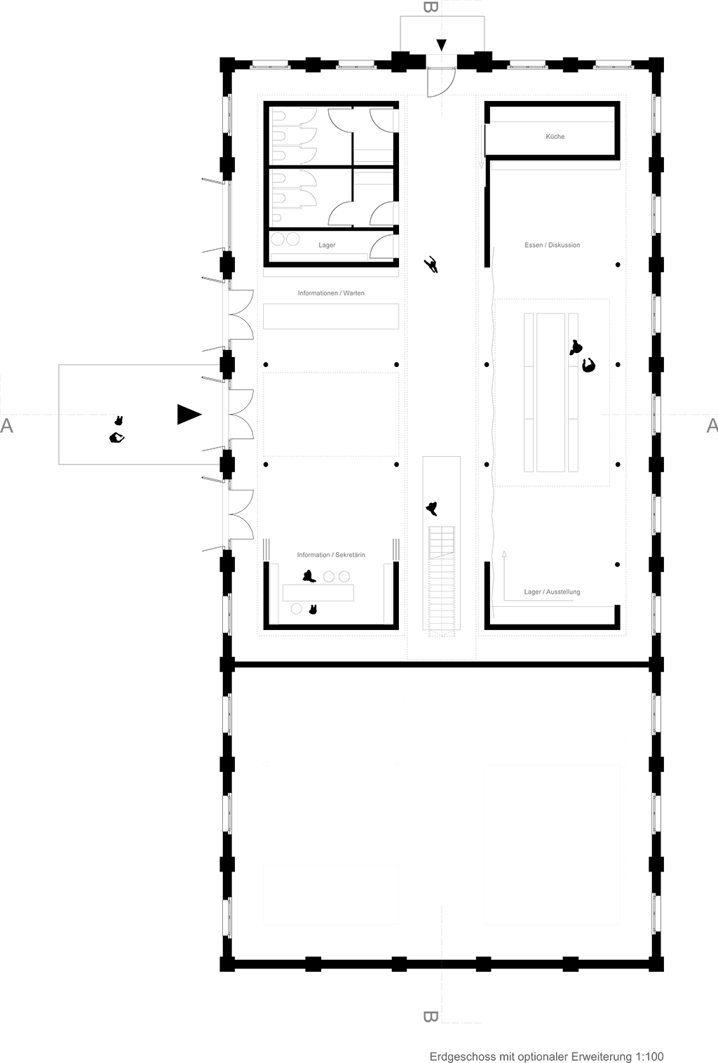
Ursprünglich als Reithalle gebaut und genutzt, diente das Gebäude ausserdem als Panzergarage und wie noch heute, als Kfz-Instandhaltung. Die ruhige Lage am südwestlichen Rand des denkmalgeschützen Areals, die solide Konstruktion, der Scharm und die kreative Nachbarschaft gebieten eine perfekte Ausgangssituation um Neues zu kreieren. In der Entwurfsaufgabe selbst als auch im anschliessendem Nutzen als "Startbahn" für den Arbeitsmarkt.
Der Entwurf zeigt grössten Respekt vor dem Alten und bildet im neuen "Rahmen", eingerückt von der Gebäudekubatur, eine neue innere Welt, die mit der alten einhergeht und zusammen arbeitet. Nach aussen zeigt sich der Eingriff bautechnisch lediglich in der Erneuerung bzw. einer Vereinheitlichung der Fensteröffnungen. Die grossformatigen Werkstatttore werden erhalten und formulieren die Erschliessung über die ostwestliche Längsseite. Die Geschosse bilden und trennen die funktionellen Ordnungen. Der zweigeschossige Erschliessungsstreifen in Längsrichtung des Gebäudes zoniert die Funktionen. Drei Räume mit Sonderfunktionen zeigen ihre Sonderstellung durch "Störungen" in der bundartigen Raumorganisation. Sie durchstoßen, berühren und stehen zwischen dem erhaltenen Dachtragwerk. Die Atmosphäre des Bestandsgebäudes wird durch das Funktionsprinzip, die Grundrissorganisationen und Materialwahl erhalten und bildet eine Synergie aus Alt und Neu. Das Raster des "Einbaus" bezieht sich auf die bestehende Struktur. Die Primärstruktur besteht aus tragenden Stahlbetonmauerscheiben und Stahlstützen. Die Decken werden als Aufbetonkonstruktion erstellt. Sonstige Wände werden als hochschalldämmender Trockenbau ausgeführt. Der Erschliessungsbund mit Steg und Treppen wird als Stahlkonstruktion mit minimierten Querschnitten errichtet.
Für Neues. Innovationen, Revolutionen, Neu-, Quer- und Überdenker. Für 1-, 2-, 3, und 4-Personen StartUps, Freelancer, Interessierte und Freunde. Die Leoni.
























