| ma 1 | | | Prof. Einar Dahle, AHO Kurzentwurf |
| team | | | Alexander Kolbinger BA Ben Griesche BA |
Auf auf ins Silo...
Die Aufgabenstellung sah vor, am Rande des Oslo'er Zentrums auf dem alten Hafengelände eines neues Museum für den Norwegischen Künstler Munch zu schaffen.
Bisher war auf dem Gelände ein altes Silo sowie eine Fischerhalle. Wir entschieden uns, die alten Gebäude zu erhalten und zu den Charme des Hafens zu wahren. Das Silo wurde im ersten Schritt von seinen Anbauten befreit und auf die ursprüngliche Form zurückgestutzt.
Im zweiten Schritt wurden neue Elemente, wie z.B. der Eingangsbereich oder das Panorama Geschoß, additiv hinzugefügt. Im Inneren wurde die alten Silobehälter als verlorene Schalung verwendet und zum Teil herausgeschnitten. Auf den neu geschaffenen Ebenen können nun die Kunstwerke von Munch ausgestellt werden.
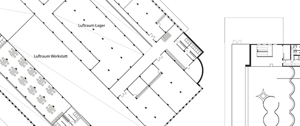
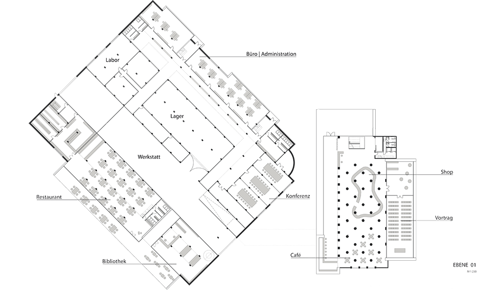
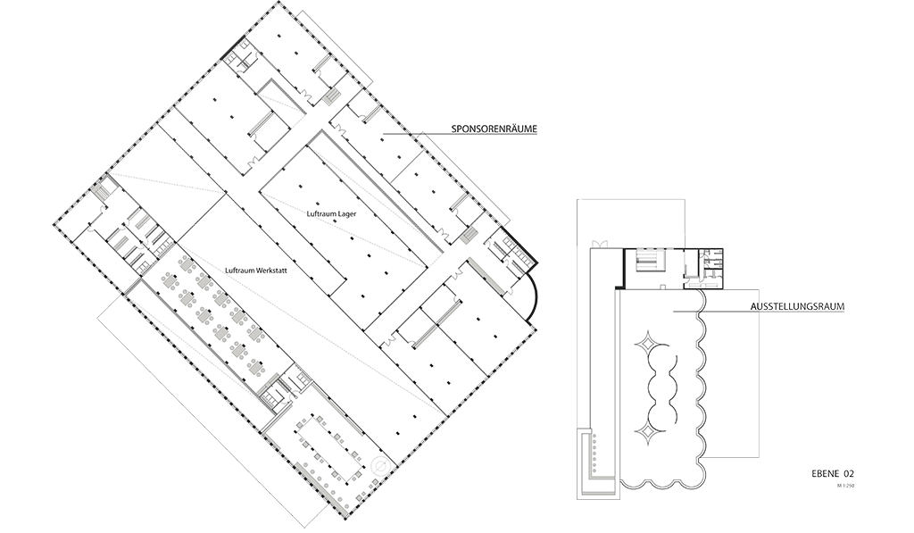
In die Fischerhalle gegenüber wurde die gesamte Verwaltung rund um das Museum gelegt. Auch die Aufbereitung sowie eine Werkstatt befinden sich dort und sind via Versorgungsgang mit dem Museum verbunden. Zum Wasser hin befinden sich weiterhin ein Restaurant sowie eine Bücherei mit Blick auf die Werkstatt.
































